62 Garrison Loop

Ladera Ranch, CA 92694

$ 477,000

Price

2

Beds

2

Baths

1,388 Sq. Ft.

$344 / Sq. Ft.

Zillow Price Estimate - $472,035

2023 Days On Market

Favorite

Share

Chambray Building

Have You Been Pre-Qualified? Start Now

Listing provided by agent Cesi Pagano BRE# 01043716 at Keller Williams Realty.

Last Updated: 2022 days ago

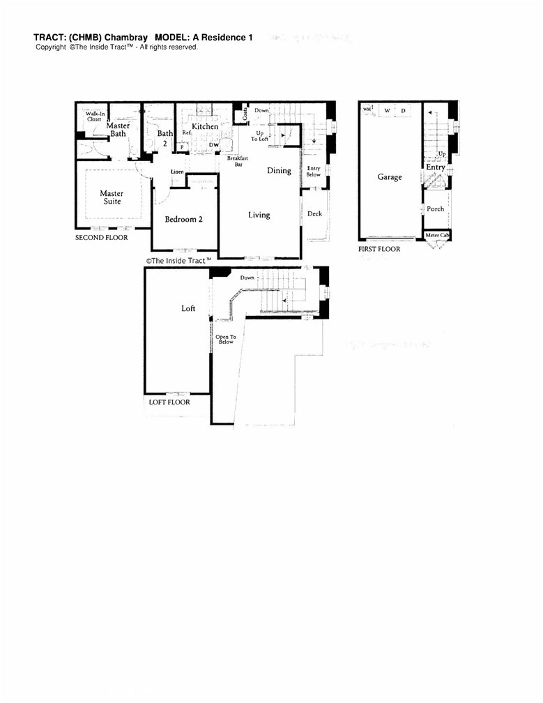
Bright and Beautiful end-unit Townhome with Attached 1-Car Garage in the delightful community of Chambray Ladera Ranch, features 2 bedrooms, 2 bathrooms + large upstairs Loft. Upon entering a lovely Great Room feel and vaulted ceilings connect the Kitchen, Dining and Living Rooms. Make a special meal for loved ones in the updated kitchen with clean white cabinetry, breakfast bar, sparkling black quartz countertops, & a large farm sink. Share your time and your meal in the charming dining space, then relax in the open family room or take the moment out onto your private balcony. New wood-look laminate flooring flows seamlessly throughout the home as well as upgraded baseboards & fresh paint—all offering you added visual appeal. The spacious master bedroom is the perfect retreat for a night of rest & relaxation with its own generous master bathroom and walk-in closet. The second bedroom is comfortable and perfect for family or guests. The upstairs Loft adds the perfect space for privacy, an ideal office environment, or would even make a wonderful Game room. Welcome Home!

Show More
Property Type Condominium
Year Built 2000
MLS # OC20076822
Listing Type Closed
Heating Central
Cooling Central Air
Pool Association, Community
Laundry Gas & Electric Dryer Hookup, Washer Hookup
Parking Garage, Garage Faces Front, No Driveway, Parking Space
Gated Community No

Payment Calculator

40% Complete (success)
80% Complete (danger)
20% Complete
80% Complete (danger)
60% Complete (warning)
Principal and Interest
Property Taxes
Homeowners' Insurance
HOA Dues
Mortgage Insurance
Image Calculator Icon Customize Calculations | Compare Mortgage Rates

Property Details for: 62 Garrison Loop

Interior Features

Bathroom Information
  • 2 full baths
Additional Rooms
  • All Bedrooms Up
  • Bonus Room
  • Entry
  • Kitchen
  • Living Room
  • Loft
  • Master Bathroom
  • Master Bedroom
  • Walk-In Closet
Laundry Information
  • Gas & Electric Dryer Hookup
  • Washer Hookup
Interior Features
  • 2 Staircases
  • Balcony
  • High Ceilings
  • Living Room Balcony
  • Open Floorplan
  • Pantry
  • Recessed Lighting
  • Storage
  • Tray Ceiling(s)
  • Unfurnished
Heating & Cooling
  • Central Air
  • Central

Parking / Garage, Multi-Unit Information, Location Details

Interior Information
  • 2 Staircases
  • Balcony
  • High Ceilings
  • Living Room Balcony
  • Open Floorplan
  • Pantry
  • Recessed Lighting
  • Storage
  • Tray Ceiling(s)
  • Unfurnished
Parking Information
  • Garage
  • Garage Faces Front
  • No Driveway
  • Parking Space
Community Features
  • Units in Complex (Total) 154

Exterior Features

Pool & Spa Information
  • Association
  • Community
  • Association
  • Community
Building Information
  • Total Floors: 3

Property / Lot Details

Property Features
  • Hills
  • Neighborhood
  • Park/Greenbelt
Lot Information
Property Information
  • Attached
  • Tax Parcel Number: 93685202

Recently Sold Homes Near 62 Garrison Loop

Nearby Businesses

  • Grocery Stores
  • Drug Stores
  • Coffee Shops
  • Restaurants
  • Health & Medical
  • Fitness & Activity
  • Arts & Entertainment
  • Nightlife & Bars
    Browse all businesses in Ladera Ranch, CA, 92694

    Tour This Condo

    FRIDAY

    12

    DEC

    SATURDAY

    13

    DEC

    SUNDAY

    14

    DEC

    MONDAY

    15

    DEC

    TUESDAY

    16

    DEC

    WEDNESDAY

    17

    DEC

    THURSDAY

    18

    DEC

    Schedule A Tour
    Ryan Case, Licensed Realtor & Team Lead

    Ryan Case

    Licensed Realtor & Team Lead

    949-570-4445 Contact Ryan Case
    Listing provided by agent Cesi Pagano BRE# 01043716 at Keller Williams Realty.

    Last Updated: 2022 days ago

    Similar Condos For Sale

    For Sale

    $ 805,000

    2 beds, 2 baths, 1,388 sq.ft.

    14 Garrison Loop ...
    View All 29 Condos